概要: 裝修,換個說法就是空間升級,如何升級,這需要有些理念。目前,家的概念必將從簡單的居住概念過渡到精神居住概念。因此,無論是蝸居陋室,還是美侖美奐的豪宅,家到底能否滿足主人的休閑、放松需要,是家居的一個硬性指標。

設計師提醒:空間升級從理念開始
裝修,換個說法就是空間升級,如何升級,這需要有些理念。目前,家的概念必將從簡單的居住概念過渡到精神居住概念。因此,無論是蝸居陋室,還是美侖美奐的豪宅,家到底能否滿足主人的休閑、放松需要,是家居的一個硬性指標。
不過我們長久以來,對家的這個基本功能卻沒有給予足夠的重視。記者一年來在采訪中經(jīng)常碰到這樣的事情,業(yè)主希望設計師給自己的家吊上美麗的天花,墻面也要進行裝飾化處理,地面最好鋪設木地板......似乎只有這樣整整,家才叫家。其實這和我們長久形成的觀念有密切的關系,家在中國人的傳統(tǒng)觀念里,一直扮演著'給別人看'的重要角色,家居是否美觀、豪華、氣派,無形中往往和主人的事業(yè)是否成功緊密聯(lián)系在一起。

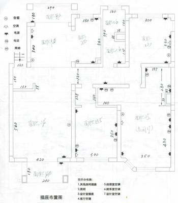
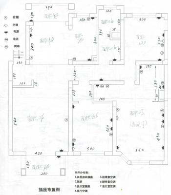
這是房子的原平面圖以及大致的尺寸??偣裁娣e是146

修改后的平面圖,主要是擴大了走入式衣柜
設計師提醒:空間升級從理念開始
裝修,換個說法就是空間升級,如何升級,這需要有些理念。目前,家的概念必將從簡單的居住概念過渡到精神居住概念。因此,無論是蝸居陋室,還是美侖美奐的豪宅,家到底能否滿足主人的休閑、放松需要,是家居的一個硬性指標。

打通原來隔斷,設計成開放式餐廳,空間上會顯得很大很通透。

餐廳壁櫥設計,在這里也可以邊就餐邊看電視。

經(jīng)典配色空間 140平時尚家居

經(jīng)典配色空間 140平時尚家居

經(jīng)典配色空間 140平時尚家居